FUJIACE 机器人码垛机
FUJIACE是拥有丰富经验与先进技术的码垛机器人生产厂家、自从在1982年开发了机器人码垛机FUJIACE以来。为了满足客户的产品多样化、高效率的要求。经过了多次的开发与研究后、达到1600cycles/hous速度、满足了生产线需求。并且EC-201功率7Kw。
|
机器人码垛机
FUJIACE
结构特征
码垛作业的AUJIACE实现了直线运动。通过三种教学方法,简化了对机器人的操作。运行轨迹只需输入起始点和终点,机器人即自动计算轨道进行码机作业。
- 钢质手臂
- 抓手多样性
- FRP 身体
- 主要共用部份
- 能源再利用循环系统
- 教学控制器
广泛应用于化工、食品、电子、橡胶、纺织、塑料、饮料等行业,随着劳动力成本提高,会有更多客户选择AUJIACE产品。
|
产品型号
EC-201 1600cycles/hour,码垛重量200kg
EC-141 1400cycles/hour,功耗4Kw
EC-101 1000cycles/hour,功耗2Kw
EC-61 600cycles/hour,功耗1.9Kw
|
|
 |
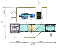
机器人码垛机参考布置图
根据客户的具体要求我们会提供精确的现场规化布置方案,
下面是部份布置方案例图仅供参考。
|
|
|
产品的输送带位于机器人的下部。这样的布置可以使工作空间减少为最小的。使机器人在狭小的空间里仍可以安装使用。
|
码垛时托盘放置在地面上,托盘可以一次放置三层,以便减少托盘更换时间。 |
|
|
Ⅲ—Ⅰ |
Ⅲ—LW |
使用输送带来搬运托盘,可以减少托盘的更换时间,达到更高的生产效率。 |
托盘由托盘仓库传送出来,组成两条生产线,可以同时顺利码垛两条生产线的产品 |
|
|
TOP |
| |